84 Lumber Logo Location Pin Facebook Icon Twitter Icon Twitter White Icon LinkedIn Icon YouTube Icon Pinterest Icon Instagram Icon
White Pin

Hearts Content Tiny House Plans

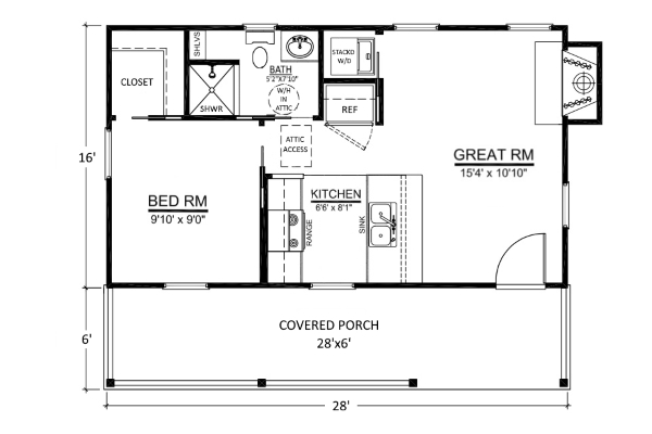
The Hearts Content Tiny House Plans from 84 Lumber makes for tiny living without cramped living. Enjoy your outdoor vistas from the full-length front porch on this charming cottage. When spending time indoors enjoy the cozy fireplace while you sit in the expansive great room. The bedroom affords privacy while providing easy access to the full bath. This is the perfect home for your country estate.
Hearts Content 84201 Front rendering 1140x540
 
 

448 sq.ft.

 Thumbnail
  • House width:       16'
  • House depth:       28'
  • Stories: 1
  • Bedrooms:           1
  • Baths:                    1
  • Ridge height: 15'
  • Roof pitch:          6/12
  • Porch: 168 sq. ft.
  • Ceiling Height:     8'
  • Foundation:         Crawl, Slab
  • Exterior walls:      2x4

Feature Sheet:

Download the feature sheet for this home plan.  


Download PDF
Floor Plan Thumbnail Floor Plan
Ready to Buy? Find Your Store